Descrizione
Villa singola – Castenedolo
Casa - Castenedolo Bs
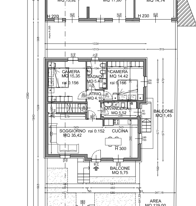
In zona centralissima, villa singola libera su quattro lati in fase di ristrutturazione completa, con ingresso pedonale ed ingresso carraio indipendenti. Al piano terra luminosa zona giorno con cucina a vista di circa 35 mq con uscita sul balcone, disimpegno, due camere matrimoniali, due bagni di cui uno con vano lavanderia ed al piano sottotetto utile locale adatto a soddisfare svariate esigenze di 19 mq. Al piano seminterrato cantina di circa 35 mq collegata direttamente alla casa con una scala interna. Adiacente alla casa due cantine di circa 35 mq. Autorimessa al piano terra di 20 mq. Corte esclusiva di circa 129 mq. Riscaldamento a pavimento pompa di calore e pannelli fotovoltaici. Possibilità personalizzazione delle finiture. Consegna prevista per gennaio 2026. Euro 450.000 più iva.



