€220.000
22
Descrizione
Villa bifamiliare in vendita – Castenedolo
Casa - Castenedolo Brescia
Immobile al rustico
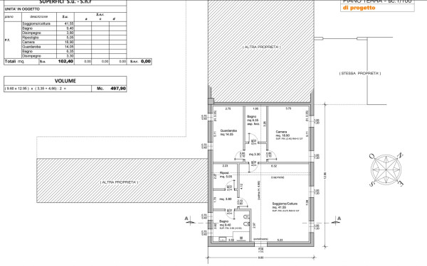
In splendido contesto in mezzo al verde proponiamo villa di testa al rustico, da rifinire a seconda delle proprie esigenze. Ad oggi open space di circa 110 mq su unico livello con splendide travi a vista, tetto e muri perimetrali del 2007, possibilità di creare zone soppalcate. Giardino esclusivo di circa 170 mq, doppio posto auto privato. Ad oggi accatastato ad uso magazzino/scuderia con progetto approvato per cambio destinazione d’uso in residenziale. Possibile soluzione quadrilocale con ottimi spazi, con preventivo di spesa per ultimazione di circa 135.000. Tetto del 2007 che non necessita di lavori.
Euro 220.000
Tel. 0306153529 – 335375481 lindafamiglietti@gmail.com





















